Neubau Haus 3, Multifunktionsgebäude: 05/2023_In der 1. Wettbewerbsphase wurden von 88 Planungsteams, auch mit internationaler Beteiligung, Entwurfsideen eingereicht. Davon wurden 7 Wettbewerbsbeiträge durch das Preisgericht für die weitere Präzisierung in der 2. Bearbeitungsphase ausgewählt.
architekturbüro LIM
Kategorie: Denkmäler, Gedenkstätten
-

WBW LaZuF Neumünster
-

Kloster Eberbach
Architektonischer Realisierungswettbewerb Hotelerweiterung
Die Erweiterung des „Kloster Hotel“ nimmt die vorhandenen Qualitäten der bestehenden Klosteranlage auf und ergänzt diese mit zwei weiteren Gebäudekörpern (Empfangshaus und Gästehaus) im Norden des Grundstücks. Die Positionierung nimmt die Struktur der alten Mauer auf und schafft einen nach Südwesten und Nordwesten ausgerichteten zusammenhängenden und geschützten Freiraum (Landschaftlicher Schwellenraum). Bestehende Bäume am Hang sollen erhalten werden. Durch die geschickte Positionierung des neuen Empfangshaus (Pavillonthema) muss hierbei nicht in das südlich bestehende Hotel eingegriffen werden.



Die Bauten des Klosters basieren auf einem rechteckigen Grundrissschema, über das die einzelnen, in ihrer Architektur unterschiedlichen Gebäude zu einem Gesamtkomplex verbunden sind. Die Zwischenräume bilden ein Geflecht von ebenfalls rechteckigen Räumen, die invers dem Innenraumschema entsprechen. Der Innere Komplex wird durch einzelne Gebäude um-stellt, die anderen Richtungen folgen und das Kloster wie Zuschauer in Augenschein nehmen. Im Unterschied zum zentralen Klosterbereich sind die umstellenden Gebäude in großem Ab-stand zueinander platziert, wodurch sich große Durchblicke zum umgebenden Grünraum erge-ben. Die beiden gegensätzlichen räumlichen und funktionalen Typologien, der große Kern im Innern und der aufgelockerte lockere Ring der einzelnen Bauten im Umfeld wird mit einem dritten Element, der Klostermauer wie mit einem Gürtel zusammengehalten. Jede bauliche Maßnahme muss sich diesem übergeordneten Raumkonzept unterordnen.

-

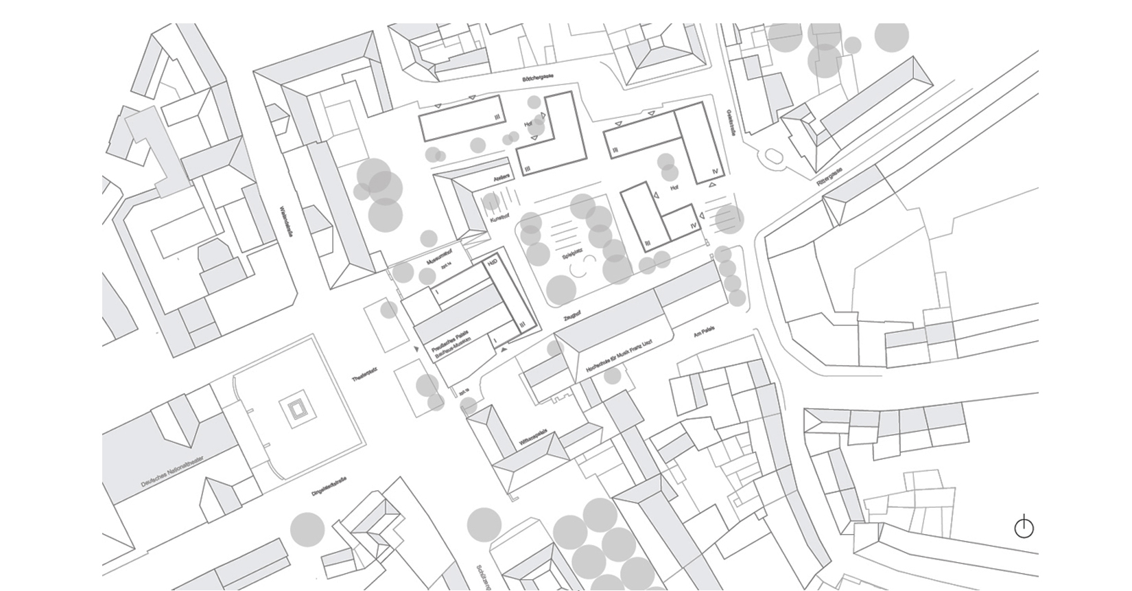
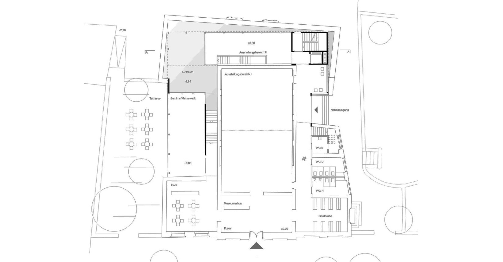
Haus der Weimarer Republik Anerkennung
Stadt Weimar, Haus der Weimarer Republik, Realisierungs- und Ideenwettbewerb

Der Wettbewerbsbeitrag stellt mit seinen eigenständigen Formen und deren Gefüge bewusst eine klare Haltung zum heterogenen städtebaulichen Kontext dar. Der Neubau versteht sich als perfekt funktionierende Vergrößerung des Bestandes. Mit der Anordnung des Baukörpers und der Plätze sowie Gemeinschaftsflächen soll eine Verflechtung der Wege und Plätze entstehen, die Gemeinschaft bildet und nicht Abgrenzung. Zusammengehörigkeit und nicht Abschottung. Das Konzept basiert auf einer wohlproportionierten Form als auch Ausrichtung und soll sich harmonisch in das bestehende Ensemble einfügen, welche durch die sensible Anordnung eine Spannung erzeugt, die klare Geometrien erzeugt und gleichzeitig die gewünschte städtebauliche Kante schafft, welche den Bereich des Parkes mit dem Spielplatz einfasst. Der Ideenteil sieht eine winkelförmige Struktur von Gebäuden vor, die individuelle Platz- und Hofsituationen enstehen lässt, welche in klar erkennbarer Weise den Straßen- und Ortraum definieren. Diese städtebaulichen Momente, die so generiert werden, sind prägend für den Ort und stiften eine wiedererkennbare zeigenössische Identität.



-

Kreismuseum Syke Anerkennung
Erweiterung Kreismuseum Syke, Hochbaulicher Realisierungswettbewerb, Auslober: Landkreis Diepholz

Ziel war es, eine zeitgemäße Haltung zu der Gestaltung des Gebäudes zu entwickeln und dieses durch einfache, wirtschaftliche aber anspruchsvolle Mittel umzusetzen. Das bedeutet, durch geschickte Details und dem Vermeiden von unnötigen sowie störenden Bauelementen eine klare Form und spannende Architektur zu schaffen. Eine Lochfassade, die in einen spannenden Rhythmus gesetzt wird und über eine entsprechende Komposition verfügt, soll den eigenständigen Charakter des Gebäudes unterstreichen. Die Platzgestaltung der Außenbereiche soll Räume der Begegnung schaffen, die zu den jeweiligen Ebenen und Funktionsbereichen die adäquate außenräumliche Kulisse bieten soll.


Der Wettbewerbsbeitrag stellt mit seinen eigenständigen Formen und deren Gefüge bewusst eine klare Haltung zum heterogenen städtebaulichen Kontext dar. Der bewusste Formendialog zu der bestehenden Bebauung äußert sich durch die Grundformen die der Neubau aufweist. Mit der Anordnung des Baukörpers und der Plätze sowie Gemeinschaftsfächen soll eine Verflechtung der Wege und Plätze entstehen, die Gemeinschaft bilden soll und nicht Abgrenzung. Zusammengehörigkeit und nicht Abschottung. Das Konzept basiert auf eine wohlproportionierten Form als auch Ausrichtung und soll sich harmonisch in das bestehende Ensemble einfügen, welche durch die versetzte Anordnung eine Spannung erzeugt, die klare Kanten unterbricht und durch Vor- und Rücksprünge, spannende räumliche Situationen entstehen lässt. Diese städtebaulichen Momente, die so generiert werden, sind prägend für den Ort und stiften eine wiedererkennbare Identität, letzlich auch für den Neubau.