Stadt Frankfurt am Main
Neubau HAUS DER DEMOKRATIE

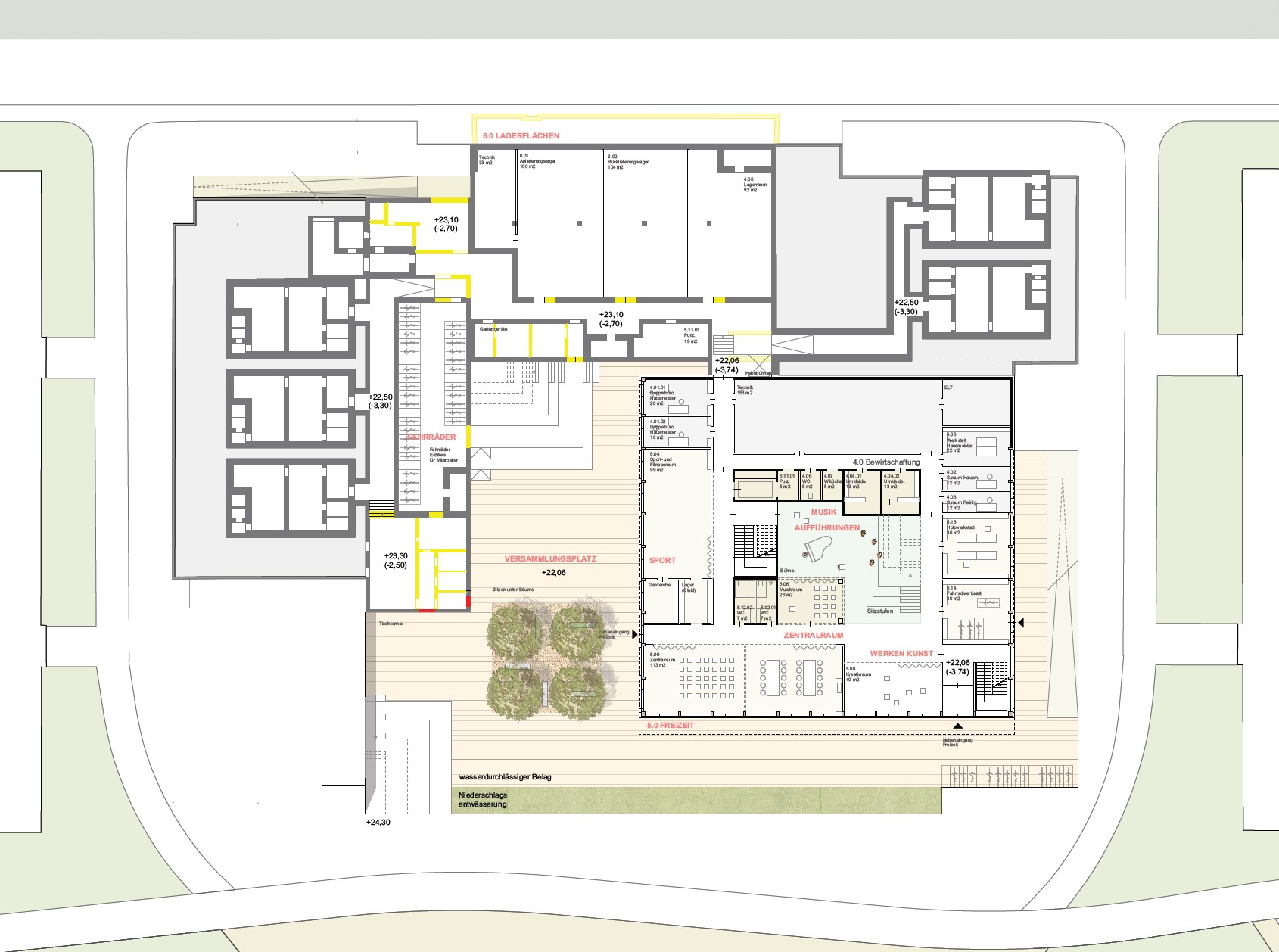
Die Beziehung zur Paulskirche wurde vorrangig behandelt. Das neue Rastersystem, das leicht zum bestehenden Raster der Paulskirche und des Platzes geneigt ist, schafft eine Lücke zwischen der Kirche und HDD. Dieser wird zum Haupteingang des Gebäudes, zu einem Raum, der Vergangenheit und Zukunft miteinander verbindet. Die Treppe zur Terrasse neben dem Haupteingang erinnert an den historischen Platz vor und nach dem Krieg, und die Mauer der Treppe bildet eine klare Grenze zwischen dem Platz und HDD. Auf diese Weise wird die Beziehung zwischen der Kirche, HDD und dem Platz ausgeglichen und in die Zukunft als ein historischer Ort weitergegeben. Das Konzept des Gebäudes basiert auf dem Raum einer Kirche, mit der Absicht, Vergangenheit und Gegenwart nebeneinander bestehen zu lassen. Die zentrale Treppe, die vom Kirchturm inspiriert ist, nutzt digitale Wände zur Information der Besucher. Die Funktion des Platzes wurde beibehalten und der fehlende öffentliche Raum wurde durch Terrassen ersetzt. Diese Terrassen erweitern nicht nur den Innenraum, sondern verbinden den Stadtraum auch visuell. Das harmonische Ensemble von Kirchen, Plätzen und Neubauten im Stadtraum entspricht den Grundsätzen der Demokratie.





















































